產品導航
Product navigation
當前位置:首頁 > 提升機圖紙 > 2040Z型提升機外形圖紙
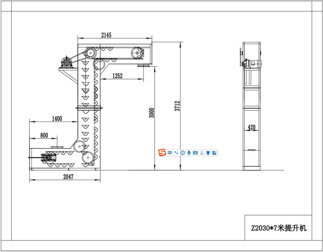
2040Z型提升機外形圖紙
發布人:新鄉天太斗式提升機廠家 發布時間:2021-04-29
2040Z型提升機系我公司為新疆**能源科技股份有限公司所設計,該Z型提升機參數如下:
華信電機:5.5kw
山東淄博ZQ350減速機
軸承:F312
斗厚:2.75mm
箱體:3.25mm
軸承:6312瓦座軸承

版權說明:如非注明,本站文章均為新鄉天太斗式提升機廠家原創,轉載請注明出處和附帶2040Z型提升機外形圖紙本文鏈接。
下一篇:斗式提升機防倒轉裝置問題探討

